Total Free Customer Care
Need Live Support?

Ontvang recent aanbevolen percelen, investeringsmogelijkheden en koopjes in Aspe, een keer per week in uw inbox.
Wenst u eventueel uw zoektocht uit te breiden per regio?
















3
2
-
1
164
villa
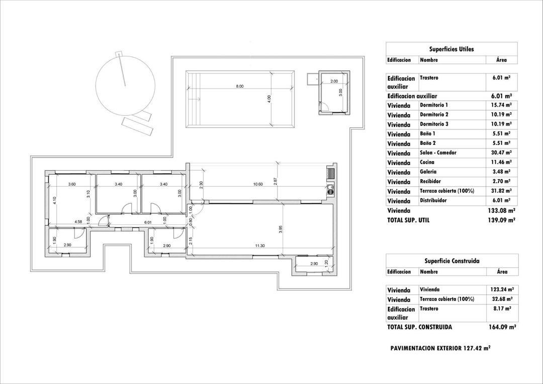
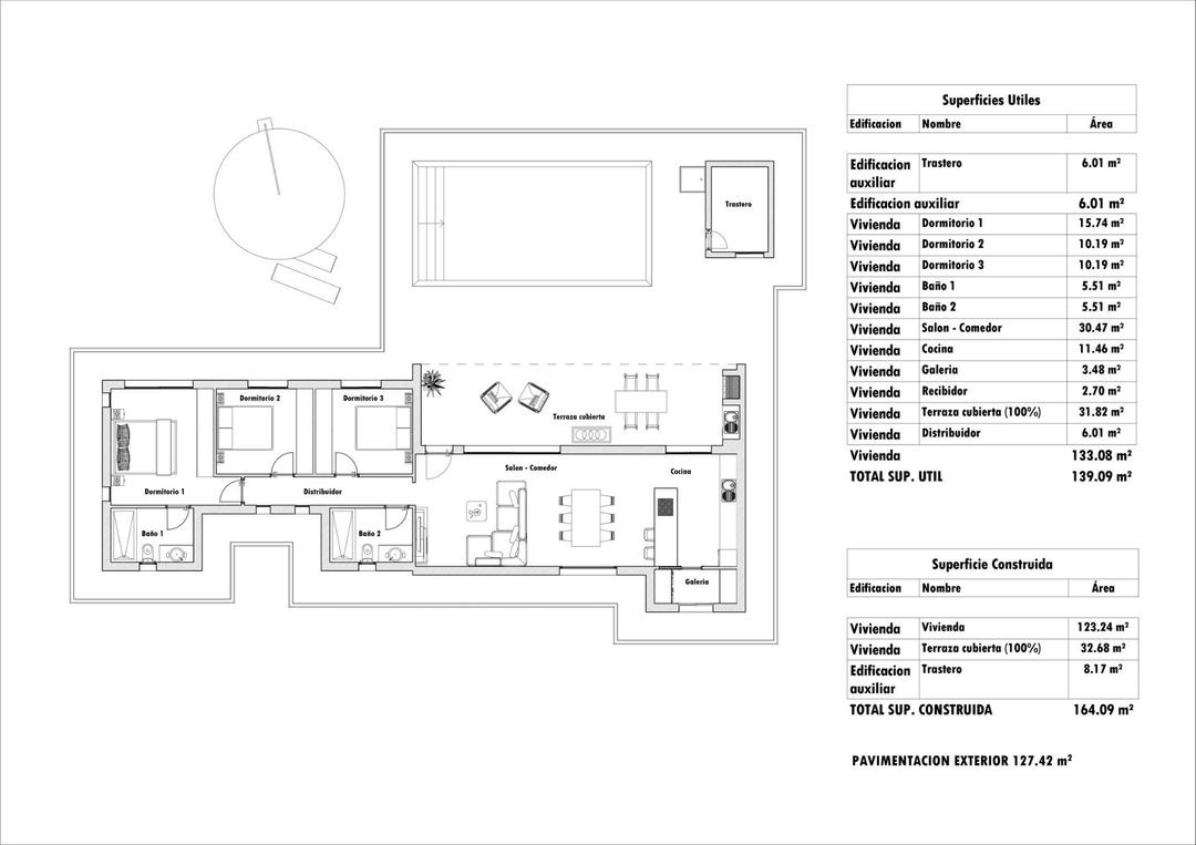
Nieuwbouwvilla's in Aspe met verschillende modellen, met 2, 3 of 4 slaapkamers, open keuken, privézwembad, veranda en rustieke percelen van meer dan 10.000 m2 met omheind gedeelte.
Woning ID
JG9181
Prijs
409,000
Grootte Woning
164
Badkamers
2
Slaapkamers
3
Garage
1
Grootte Garage
-
Bouwjaar
-
Woningtype
villa
Status Woning
Te koop
Stad
Regio
Provincie
Aspe
-
Alicante
Costa
Land
-
Spain
Air conditioning
Gazon
Zwembad

















© Copyright Geerts Real Estate - All rights reserved.