Total Free Customer Care
Need Live Support?

Recevez des parcelles récemment recommandées, des opportunités d'investissement et des bonnes affaires à Aspe, une fois par semaine dans votre boîte de réception.
Souhaitez-vous étendre votre recherche par région ?















4
3
-
1
223
villa
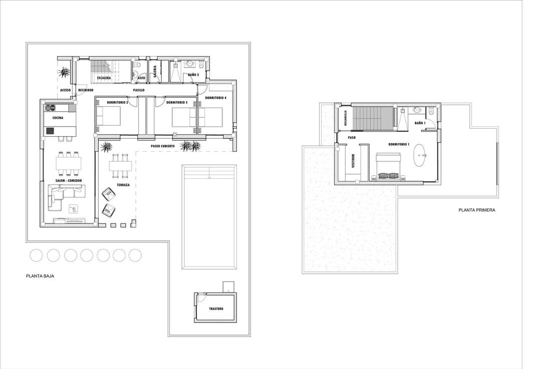
Nouvelles villas en construction avec plusieurs modèles au choix, de 2 à 4 chambres, situées sur des terrains rustiques de plus de 10 000 m2 à Aspe. Projet d'autoconstruction avec piscine privée, cuisine ouverte et environnement calme proche de la mer.
ID De La Propriété
JG9184
Prix
563,000
Taille De La Propriété
223
Salles de bains
3
Chambres
4
Garage
1
Taille Du Garage
-
Année De Construction
-
Type De Propriété
villa
Statut De La Propriété
À vendre
Ville
Région
Province
Aspe
-
Alicante
Costa
Pays
-
Spain
Air Conditioning
Pelouse
Piscine
















© Copyright Geerts Real Estate - All rights reserved.