Total Free Customer Care
Need Live Support?

Receive recently recommended plots, investment opportunities and bargains in Puerto de Mazarron, once a week in your inbox.
Would you like to expand your search by region?












2
2
-
1
64
apartment
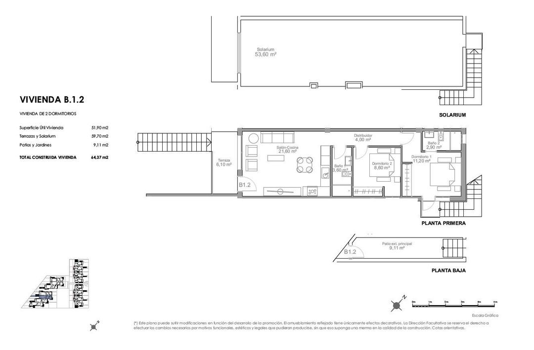
New build homes just 200 metres from the beach in Puerto de Mazarrón offer exclusive coastal living in a sought-after area. The development features modern 2-bedroom homes with customizable layouts, private gardens, and optional pools, all within proximity to essential amenities. Experience a relaxed lifestyle near stunning beaches and natural surroundings. Contact us for more details!
Property ID
JG9689
Price
221,000
Property Size
64
Bathrooms
2
Bedrooms
2
Garage
1
Garage Size
-
Year Built
-
Property Type
apartment
Property Status
For sale
City
Region
Province
Puerto de Mazarron
-
Murcia
Costa
Country
Costa Cálida
Spain
Lawn
Seaview













© Copyright Geerts Real Estate - All rights reserved.